Alpendorf liegt auf einer Höhe von 800 Metern und ist ca. 3,5 km od St. St. Johann im Ponqau. Das Bergdorf, v dem das Projekt stattfinden wird, ist eine eigenständige Ferieninsel inmitten der Alpen mit 1900 Gästebetten. Dies ist eine sehr interessante Investice inmitten des höchsten Skigebiets SKI Amadé mit 270 Liften und 860 Pistenkilometern.
Baubeginn im Herbst 2019, geplante Fertigstellung im Jahr 2021.
Gerne unterbreiten wir Ihnen ein passendes Finanzierungskonzept einer tschechischen oder österreichischen Bank, um eine Wohnung mit ca. 30% Eigenmitteln über Mieteinnahmen zu finanzieren. Der aktuelle Zinssatz v Österreich liegt bei 1,25%. Die Anschaffungskosten betragen als Standardverfahren für den Kauf österreichischer Immobilien ca. 10% des Bruttokaufpreises. Invest & Design berechnet 3,5% + MwSt. Auf den Kaufpreis der Immobilie inkl. Gesetzl. MwSt. Wir werden Sie durch den Kaufprozess führen, einschließlich Rechtsberatung und Unterstützung in tschechischer Sprache während des gesamten Kaufprozesses, auch in Österreich (während einer Tour, beim Unterschreiben von Dokumenten bei einem.
Warum dieses Projekt wählen?
- günstigerer Preis ab 149 500 EUR zzgl. MwSt. pro Hotelzimmer und ab 289 000 EUR zzgl. MwSt. pro byt
- Hervorragende Erreichbarkeit von Prag, ca. 4,5 Stunden
- Geschätzte jährliche Mieteinnahmen von ca. 4-5% und weitere Aufwertung
- Ihrer Immobilie Das Projekt ve společnosti fußläufiger Entfernung zu den Skipisten im Gebiet Ski Amade
- schöne Aussicht und Restaurants zu Fuß erreichbar
TYP WOHNUNGEN ANGEBOT:
| NÁZEV | IDF. NR | GESCHOß | NFL M2 | BALKON M2 | TERRASSE M2 | ZIMMER | PREIS OHNE MwSt,
AUSRÜSTUNG OHNE MwSt. (EUR) |
VERKAUFSSTATUS |
|---|---|---|---|---|---|---|---|---|
| Apartmán | 1 | NAPŘ | 100,87 | 28,70 | 4 | 349 000 EUR | verkauft | |
| Apartmán | 2 | NAPŘ | 74,84 | 21.13 | 3 | 329 000 EUR | verkauft | |
| Apartmán | 3 | NAPŘ | 74,84 | 17,95 | 3 | 329 000 EUR | verkauft | |
| Apartmán | 4 | NAPŘ | 77,67 | 18,92 | 3 | 349 000 + 30 000 | verkauft | |
| Apartmán | 10 | 1.OG | 83,45 | 06.03 | 3 | 339 000 EUR | verkauft | |
| Apartmán | 11 | 1.OG | 74,84 | 06.03 | 3 | 339 000 EUR | verkauft | |
| Apartmán | 12 | 1.OG | 74,84 | 06.03 | 3 | 339 000 EUR | verkauft | |
| Apartmán | 13 | 1.OG | 77,50 | 06.03 | 3 | 339 000 EUR | verkauft | |
| Apartmán | 14 | 1.OG | 66,63 | 5,88 | 2 | 299 000 + 25 000 | verkauft | |
| Apartmán | 15 | 1.OG | 75,20 | 30,33 | 3 | 349 000 EUR | verkauft | |
| Apartmán | 16 | 1.OG | 73,58 | 31.13 | 3 | 349 000 EUR | verkauft | |
| Apartmán | 17 | 1.OG | 85,77 | 17,36 | 3 | 349 000 EUR | verkauft | |
| Hotelzimmer | 18 | 2.OG | 24,47 | 2.40 | 1 | 149 000 EUR | verkauft | |
| Hotelzimmer | 19 | 2.OG | 21,99 | 3.51 | 1 | 149 000 EUR | verkauft | |
| Hotelzimmer | 20 | 2.OG | 24,31 | 1 | 149 000 EUR | verkauft | ||
| Hotelzimmer | 21 | 2.OG | 25,94 | 3.51 | 1 | 149 000 EUR | verkauft | |
| Hotelzimmer | 22 | 2.OG | 22,56 | 2.40 | 1 | 149 000 + 10 000 | verkauft | |
| Hotelzimmer | 23 | 2.OG | 22,56 | 2.40 | 1 | 149 000 EUR | verkauft | |
| Hotelzimmer | 24 | 2.OG | 22,94 | 3.51 | 1 | 149 000 EUR | verkauft | |
| Hotelzimmer | 25 | 2.OG | 24,31 | 1 | 149 000 EUR | verkauft | ||
| Hotelzimmer | 26 | 2.OG | 25,94 | 3.51 | 1 | 149 000 EUR | verkauft | |
| Hotelzimmer | 27 | 2.OG | 26.01 | 2.40 | 1 | 149 000 EUR | verkauft | |
| Hotelzimmer | 28 | 2.OG | 24,59 | 1 | 149 000 EUR | verkauft | ||
| Hotelzimmer | 29 | 2.OG | 29,88 | 06.03 | 1 | 149 000 EUR | verkauft | |
| Apartmán | 30 | 2.OG | 69,69 | 5,83 | 18,22 | 1 | 369 000 EUR | verkauft |
| Hotelzimmer | 24 | 3.OG | 30.39 | 2 | 159 000 EUR | verkauft | ||
| Hotelzimmer | 25 | 3.OG | 29.81 | 06.03 | 2 | 169 000 EUR | verkauft | |
| Appartement | 26 | 3.OG | 72.58 | 12.04 | 3 | 369 000 EUR | verkauft | |
| Appartement | 27 | 3.OG + 4.OG | 93.39 | 18.09 | 15.90 | 4 | 549 000 EUR | verkauft |
| Appartement | 28 | 3.OG + 4.OG | 127.75 | 12.06 | 5 | 599 000 EUR | verkauft | |
| Appartement | 29 | 3.OG + 4.OG | 126.97 | 12.06 | 6 | 629 000 + 40 000 | verkauft | |
| Appartement | 30 | 3.OG + 4.OG | 135.86 | 12.06 | 6 | 575 000 EUR | verkauft | |
| Hotelzimmer | 31 | 4.OG | 24.59 | 1 | 107 000 EUR | verkauft | ||
| Hotelzimmer | 32 | 4.OG | 29.78 | 06.03 | 2 | 149 000 EUR | verkauft | |
| Appartement | 33 | 4.OG | 72.64 | 12.04 | 3 | 369 000 EUR | verkauft |
Alle Preise verstehen sich ohne Mehrwertsteuer. Die Preise beinhalten Küche und Tiefgarage.
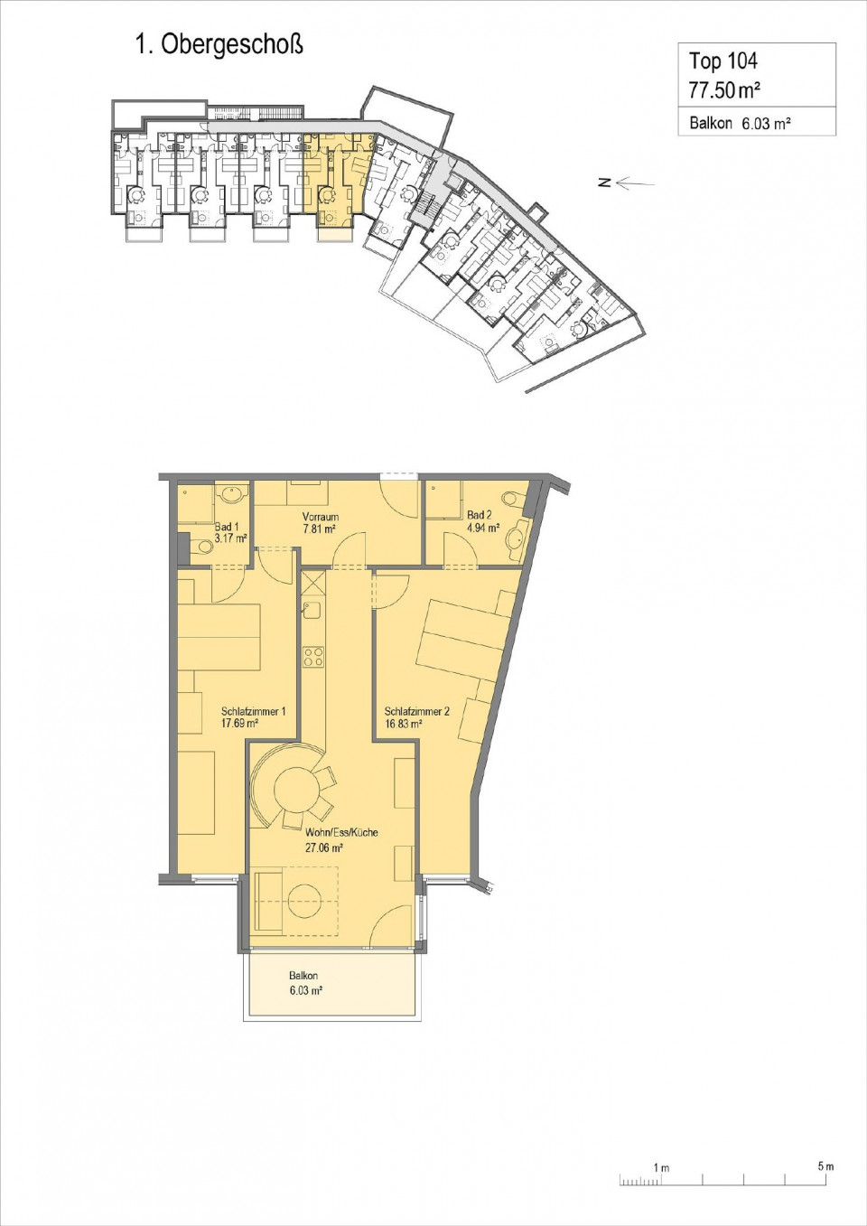
Grundrisse und Musterwohnungen:
RESORT ST.JOHANN- ALPENDORF (SKI AMADE)

Nur wenige Gehminuten vom Projekt entfernt und auf einer Höhe von 650 – 1.850 Metern über dem Meeresspiegel finden Skifahrer alles, was sie für einen perfekten Skiurlaub in Österreich benötigen. Bis zu 270 Kilometer perfekt präparierte Pisten, gemütliche Berghütten, Dienstleistungen direkt an der Skipiste und viele Erlebnisse im Skigebiet nicht nur im Winter. Aufgrund seiner Lage und einfachen Zugang zu St. St. Johann im Pongau zu sehr beliebten Skigebieten.

Kart der Skigebiete: http://www.alpy.net/ski/st-johann-alpendorf-lyzarska-mapa.php
- Für Kinder: Der Teufelsring – Forststraße durch das Geisterberg-Erlebnisgebiet und der neue SkiMovie in Alpendorf
- 100% schneesicher von Dezember bis Frühling
- Wi-Fi Ski amadé kostenlos an fast allen unteren und oberen Seilbahnstationen und vielen Fotopunkten im Internet
- Gute Anbindung an die Autobahnen, 70 km od Salcburku
- Snowpark Alpendorf: Užijte si Freestyle lautet das Motto des Snowparks und Funparks im Skigebiet Alpendorf v St. Johann im Pongau. Freestyle-Anfänger können hier im Park ihre ersten Versuche machen und Fortgeschrittene können an ihren Fähigkeiten arbeiten
- Entfernung von Prag ist ca. 4, 40 h mit dem Auto


























